日期:2025-03-24 分类:产品知识 浏览:1665 来源:广东佑风微电子有限公司
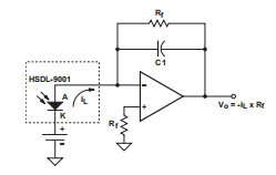
一种低成本的模拟输出环境低成本微型四平面引线(QFN)无铅表面贴装封装中的光光电二极管。它由一个光电二极管组成,在人体内达到峰值在550纳米处发光旋涡。因此,它提供了卓越的响应性,接近响应它提供了HSDL-9000数字输出的替代设计无限环境光照传感器光探测阈值控制。是以下应用的理想选择环境光的测量用来控制显示背光。移动应用程序,如手机和掌上电脑会产生大电流从显示屏背光将受益于将纳入他们的设计是为了降低功耗明显地。
特征
卓越的反应能力,在人体内达到顶峰550nm下的光度曲线对人眼的密切反应微型QFN表面贴装组件
高度0.60 mm
宽度2.00 mm
深度1.50 mm
无限环境光检测阈值控制
保证温度性能
-40oC至85oC
VCC电源2.7至3.6 V
无铅和符合RoHS
应用
检测环境光以控制显示器背光
移动设备:移动电话、PDA
计算设备:笔记本电脑、网页
消费设备:电视、摄像机、数码相机
日光和人工光暴露装置


电气和光学规范
除非另有说明,否则规格(最小值和最大值)保持在推荐的操作条件下。未指定
测试条件可能在其工作范围内的任何地方。
除非另有说明,否则所有典型值(典型值)均为25°C,VCC为3.0 V。

笔记:
1.CIE标准光源(白炽灯)的照度。
2.荧光灯用作光源。然而,在大规模生产中,白光LED被取代了。


回流焊外形是标称
对流回流焊工艺的温度分布。温度分布被划分分成四个加工区不同的时间温度变化率。时间价格详见上表。
测量温度
在要打印的组件处电路板连接。在工艺区P1,PC板和I/O引脚加热至温度160°C至激活焊料中的助焊剂粘贴。气温上升速率R1限制为4°C/第二个是加热均匀PC板和HSDL的-9001输入/输出引脚。
工艺区P2应为
足够的持续时间(60到–120秒)干燥焊料粘贴。温度升高了略低于液相线焊点,通常200摄氏度(392华氏度)。工艺区P3是焊料回流区。在P3区温度迅速升高焊料液相线以上至255°C(491°F)最佳结果。停留时间超过焊料的液相点应为在20到60秒之间。它通常需要20秒确保将焊球焊接成液态焊料良好焊料的形成连接。超过停留时间60秒,金属间化合物焊料内生长连接过度,导致软弱的形成以及不可靠的联系。这个然后温度很快减少到焊料的固态温度,通常为200°C(392°F),以允许连接处的焊料冻结固体。
工艺区P4是冷却区
焊料冻结后。冷静汇率R5,从25°C(77°F)的焊料应每秒不超过-6°C最大值。这个限制是允许PC板和收发器的蜂窝I/O销均匀地改变尺寸,把压力降到最低HSDL-9001标准。
附录A:SMT组装申请说明
1.0焊盘、掩模和金属钢板开孔


1.2推荐的金属焊料钢板开孔建议只有0.152毫米(0.006英寸)厚锡膏用模板印刷。这是为了确保足够的印刷锡膏音量和无短路。护板开孔以土地类型为准。

1.3邻近土地禁止和焊接掩模区域附近的土地是最大占用空间相对于土地的单位模式。不应该有其他的SMD组件区域。最小阻焊条避免焊接所需的宽度桥接相邻的焊盘0.2毫米。
注:湿/液体光成像阻焊/掩模推荐。

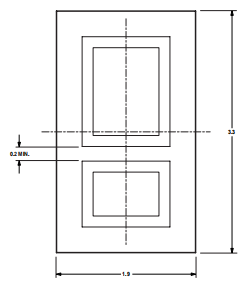
光学窗口尺寸以确保HSDL-9001的窗户不合适设计,在尺寸和窗户的设计。有一个最小尺寸限制窗户,它被放在光电二极管的前端
不会影响角度HSDL-9001的响应。最小尺寸为推荐将确保至少一个±35°的光接收锥。如果需要较小的窗口,则灯管或导光板可以使用。光管或光导管是一个圆柱形的透明塑料,使利用全内反射聚焦光线。
窗户的厚度应保持最低限度可能是因为每个光学窗口的功率大约8%是由于反射(4%每边)和一个附加的塑料中的能量损失材料。
图说明了这两个我们的窗户类型推荐,可以是是平窗还是平窗带着灯管。

